5 bedroom House - Semi-Detached (Sold (STC))
Overview
A large, spacious and ultra-modern family home with stunning open-plan kitchen/dining/family-room in a quiet cul-de-sac near excellent schools. (Property Ref: ADDISONCLOSE)
Overall Description
This large family home has been extended, re-modelled and comprehensively up-dated over the last six years to create a spacious, light and modern family home in a lovely quiet cul-de-sac location, close to excellent local schools and transport links. The house really does have the "wow" factor, especially with its stunning open-plan kitchen/dining/family-room with triple sliding doors opening fully out onto the large stone patio to the rear. There are five bedrooms, the master in the converted loft having an en-suite, with a bathroom on the first floor and a shower room downstairs. There is a cosy sitting room with wall-mounted TV point and the fourth downstairs bedroom could be used as a home office if needed. The property has ample off-street parking on the private driveway to the front and the back garden has been landscaped to maximise its use as an entertainment space. If you are looking for a contemporary and flexible home with plenty of space for a growing family then early viewing is highly recommended.
Location
This superb family home sits in a quiet residential cul-de-sac just a short walk from local shops and supermarkets as well as Northwood and Northwood Hills Underground stations (on the Metropolitan Line to central London and the City). There are a wide selection of excellent schools locally including the Hillside Infant School, Woodlodge Montessori, Northwood School, Pinner Wood School, St John's School as well as the St Helen's (Girls), St Martin's (Boys) and Merchant Taylor's (Boys) Schools, which are all in the vicinity. The property is a short walk from the Hogs Back Open Space with its pretty woodland walks and there are excellent sporting facilities close-by at the Nortwood Recreation Ground (football, cricket, tennis, bowls), as well as the Pinner Golf Course
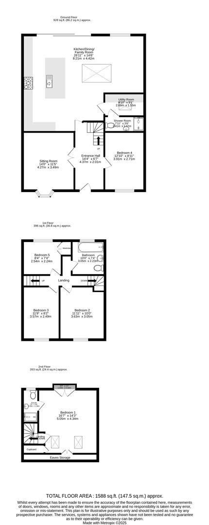
Accommodation
From the private drive the front door leads into the:
Entrance Hall - 4.37m x 2.01m (14'4 x 6'7)Amtico wood-effect flooring. Stairs to first floor with under-stairs wine storage space. Wooden half-panelling. Coving. Radiator.
Sitting Room - 4.27m into bay x 3.48m (14' into bay x 11'5)Bay window to front. Amtico wood-effect flooring. Wooden half-panelling. Coving. Wall-mounted TV aerial point. Radiator.
Kitchen/Dining/Family Room - 6.50m x 8.48m widest (21'4 x 27'10 widest )A wonderful large, light, open-plan living space with roof lantern and triple sliding doors opening out onto the patio. Kitchen area with good range of contemporary kitchen units, quartz work-tops, a central island and a double Belfast sink. Space for electric Range oven with five-ring gas hob and extractor above. Fitted fridge and freezer. Fitted dishwasher. Wine fridge. Porcelein tiled floor. There is a good-sized dining area leading to the family living area with wall recess and aerial point for a TV. Electric flame-effect convection heater with remote control. Further feature wall alcoves. Window to rear. Coving. Celing spotlights. Two radiators.
Utility Room - 2.69m x 1.55m (8'10 x 5'1)Lantern in ceiling. Quartz work-top with space and plumbing for washing-machine and tumble-drier beneath. Boiler cupboard housing Vaillant gas-boiler and large Megaflow hot water tank. Ceiling spotlights. Porcelein tiled floor.
Shower Room - 2.41m x 1.07m (7'11 x 3'6)Sky-light. Fitted shower cubicle. Low-level WC. Wash-hand basin. Tiled floor and walls with two storage alcoves. Modern heated towel-rail.
Bedroom Four - 3.91m x 2.72m (12'10 x 8'11)Window to front. Wall-mounted TV aerial point. Radiator.
First Floor - 3.43m x 1.75m (11'3 x 5'9)From the hall stairs lead up to the landing.
Bedroom Two - 3.63m x 3.05m (11'11 x 10')Window to front. Radiator.
Bedroom Three - 3.58m x 2.49m (11'9 x 8'2)Window to front. Telephone point. Radiator.
Bathroom - 2.51m x 2.24m (8'3 x 7'4)Panel bath with shower above and glass shower screen. Low-level WC. Wash-hand basin. Modern heated towel-rail. Tiled floor and walls.
Bedroom Five - 2.54m x 2.24m (8'4 x 7'4)Two fitted wardrobes. Fitted dresser and shelving. Radiator.
Second Floor - 1.73m x 1.68m (5'8 x 5'6)From the first floor stairs lead up to the second floor landing.
Bedroom One - 5.05m x 4.34m (16'7 x 14'3)Two Velux windows to front and French doors opening onto a Juliet balcony to the rear. Wall-mounted TV aerial point. Two under-eaves storage spaces. Spotlights. Radiator.
En-Suite Shower Room - 2.26m x 1.07m (7'5 x 3'6)Frosted window to rear. Double shower cubicle with tiled surround. Low-level WC. Wash-hand basin. Modern heated towel-rail. Tiled floor and walls. Extractor fan. Spotlights.
Outside
The property has a good-sized driveway to the front with ample parking space and there is plenty of on-street parking along the road. The electrics have been put in place for an EV charging point, should you wish to add one. The back garden has been landscaped for easy maintenance with a large stone patio accessed from the triple sliding doors from the open-plan kitchen/dining area. Steps lead up to a raised area of lawn with flowerbeds and fencing for privacy. Ouside wall lights. Outside twin sockets. Garden tap.
Services and Other InformationMains water, drainage, gas and electricity. Gas-fired central heating (Vaillant Boiler is c.3 years old with large Megaflow hot-water tank - ideal for a large family). Double-glazed windows. TV aerial point. Telephone point. Council Tax Band: D. Electric wiring in place by the front door for an EV charging point should you need it.










