3 bedroom House - Semi-Detached (Available)
Overview
A semi-detached family home with private driveway, large gardens and plenty of potential in a pleasant residential location. No chain. (Property Ref: LEYBOURNEROAD)
Overall Description
This semi-detached house sits in a slightly elevated position in a pleasant child-friendly residential location. The house has three bedrooms and a bathroom upstairs while on the ground floor is the entrance hall, sitting room with open fireplace, kitchen/ding room, utility/rear porch and downstairs cloakroom. The property is double-glazed and has gas central-heating. There is a private driveway and scope to add extra parking in the front garden should that be desired. The back garden is large and there is scope to further extend the property (subject to the usual consents). If you are looking for an excellent family home with lots of potential then why not book a viewing at the Open House from 10am to 11am on Saturday 8th November. The property is being sold with no chain.
Location
This property sits in a quiet residential location in the town of Strood, just north of the Meday and a short drive from Rochester and Chatham. The house has an Asda Express in a nearby petrol station and there are further High Street and other shops, supermarkets and other amenities in the centre of town, a short drive away. There are schools at all levels in the immediate area including the Elaine Primary School, Chrubs Montessori, the Abbey Court School and the Gordons Children's Academy. The Rede Common Nature Reserve is just up the road and other local green spaces include the Northcote Road Recreation Ground. Strood railway station gives regular commuter services to London St Pancras and there are excellent bus services locally.
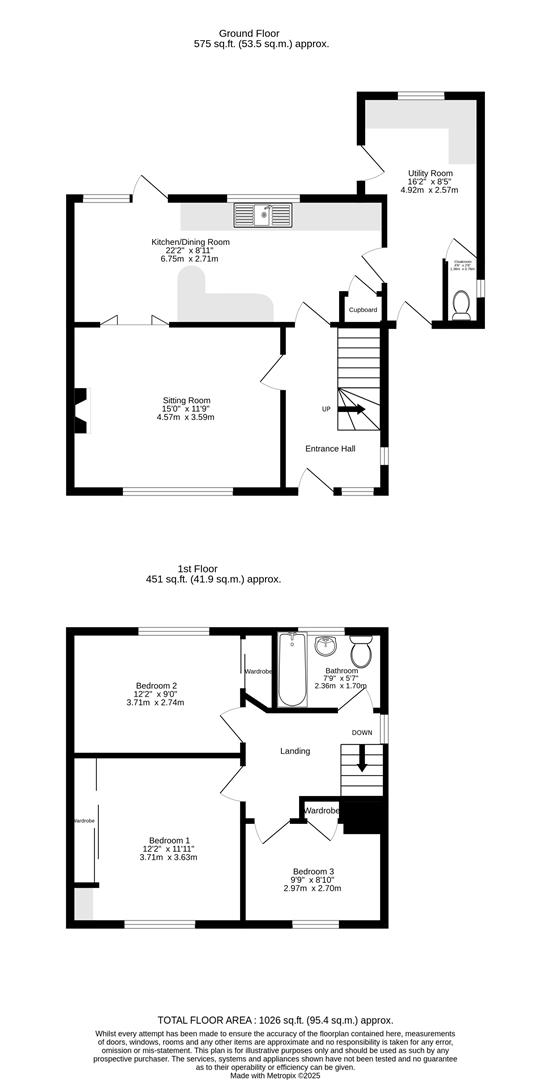
Accommodation
From the drive the front door leads into the:
Entrance Hall - 3.94m x 2.13m (12'11 x 7')Frosted window to front and side. Stairs to first floor with under-stairs cupboard. Radiator.
Sitting Room - 4.57m x 3.58m (15' x 11'9)Window to front. Fireplace with wooden mantel brick surround and stone hearth. TV aerial point. Radiator.
Kitchen/Dining Room - 6.76m x 2.72m (22'2 x 8'11)Two windows to rear. Kitchen units with roll-top worksurfaces and sink unit. Space for electric oven. Space for fridge. Space and plumbing for washing-machine. Wall-mounted gas central-heating boiler. Glazed door to rear. Radiator. Door to the side into the:
Utility Room/Side Porch - 4.93m x 2.57m widest (16'2 x 8'5 widest)Glazed door to front drive and another to the rear into the garden. Window to rear. Kitchen units with roll-top work surfaces. Space for fridge and freezer. Storage cupboard. Door to:
Downstairs Cloakroom - 1.37m x 0.76m (4'6 x 2'6)Window to side. Low-level wc.
First Floor - 2.97m x 1.30m (9'9 x 4'3)Window to side. Loft hatch.
Bedroom One - 3.71m x 3.63m (12'2 x 11'11)Window to front. Fitted wardrobes and dresser. Radiator.
Bedroom Two - 3.71m x 2.74m (12'2 x 9')Window to rear. Fitted wardrobe. Airing cupboard with factory-lagged hot-water cylinder. Fitted shelving. Radiator.
Bathroom - 2.36m x 1.70m (7'9 x 5'7)Frosted window to rear. Panel bath. Low-level wc. Wash-hand basin. Radiator.
Bedroom Three - 2.97m x 2.69m (9'9 x 8'10)Window to front. Fitted wardrobe. Fitted shelving. Radiator.
Outside
The property has good-sized front garden with a lawn, flowerbeds and a private driveway with ample off-street parking (and space to create more if so needed). The back garden is accessed through the side porch and is large with a central lawn, flowerbeds and a fenced border. GARDEN SHED. GREENHOUSE. SUMMERHOUSE.
Services & Other Info.
Mains gas, electricity, water and drainage. Gas central-heating. Double-glazed windows. Council Tax band: C.



















