2 bedroom House - End Terrace (Sold (STC))
Overview
EXCELLENT PROJECT: A 1950’s end-of-terraced house with much potential, in a pleasant residential location, that is in need of complete internal modernisation. No chain.
Overall Description
This is a 1950's end-of-terraced house in a pleasant residential location. The property is in need of complete internal modernisation but does offer buyers plenty of scope to create a modern family home to meet their own style and tastes. The house has two double bedrooms and a bathroom upstairs while on the ground floor is an entrance hall, dual aspect sitting/dining room, kitchen and lean-to greenhouse as a rear porch. Other properties in the area have sub-divided the master bedroom to make the house a three bedroom property which is an option should you so wish. The property has double-glazed windows and gas central-heating. Outside there is a good-sized front garden area which may have potential to convert into off-street parking, as others have in the area, subject to consent. There is a path and gate to the side with pedestrian access to the good-sized back garden as well as a shared right-of-way up the driveway to the garage. The property is being sold with no chain. There is an Open House from 11am to 12 noon on Saturday 8th November, so please call to book a viewing.
Location
This property sits in a pleasant residential location just a ten to fifteen minutes walk from Tattenham Corner railway station, with regular trains to London Bridge (every 30 mins in the week taking around an hour). Local schools include the Tadworth Primary School, Little Kickers East Surrey Primary School, the Epsom Downs Community School and Early Years Centre, the Aberdour School and the Beacon School. There are local shops including a Londis a short walk away and other supermarkets and high street shops in the local area including a Waitrose in Banstead. There are plenty of sporting and other amenities locally including the Epsom Golf Club, the Surrey Downs Golf Club and horse racing at the Epsom Downs Race Course.
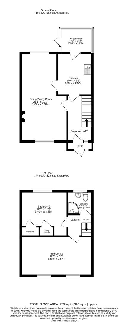
Accommodation
A path leads up and around the front garden to the glazed front door into the:
Front Porch - 1.70m x 0.61m (5'7 x 2')Window to front. Glazed door to the:
Entrance Hall - 3.35m x 1.83m (11' x 6')Stairs to first floor. Under-stairs storage space with electric and gas meters.
Sitting/Dining Room - 6.43m x 3.38m (21'1 x 11'1)Windows to front and back. Wall-mounted electric heater. TV Aerial point. Telephone point. Two radiators.
Kitchen - 3.05m x 2.57m (10' x 8'5)Window to rear. Kitchen units with roll-top worksurfaces and a stainless steel sink unit. Space for electric oven. Space for fridge/freezer. Space and plumbing for washing-machine. Radiator. Glazed door to:
Greenhouse - 2.36m x 1.78m (7'9 x 5'10)Aluminium frame with Upvc windows. Door to the garden.
First Floor - 1.78m x 1.57m (5'10 x 5'2)From the hallway stairs lead up to the landing.
Bedroom One - 5.31m x 2.87m (17'5 x 9'5)Two windows to front. Radiator.
Bedroom Two - 3.40m x 3.20m (11'2 x 10'6)Window to rear. Airing cupboard with wooden slatted shelving. Wardrobe housing gas central-heating boiler. Radiator.
Shower Room - 1.98m x 1.68m (6'6 x 5'6)Frosted window to rear. Fitted shower with tiled surround. Low-level WC. Wash-hand basin. Tiled walls. Tile-effect laminate floor. Modern heated towel-rail.
Outside
The property has a good-sized front garden which has potential to turn into off-street parking, as others have done in the road, subject to the usual consent. A gate leads to a path around the rear of the house to the back garden which is a decent size with a brick GARDEN SHED: 7'7 x 4'6 and COAL SHED: 4'11 x 2'3. There is a shared right-of-way up the driveway leading to the garage.
Services & Other Info.
Mains gas, electricity, water and drainage. Gas central heating (Boiler new c. 2023). Council Tax Band: C.


















